new WOW().init();

緊急切斷電磁閥-常閉型與燃氣監測儀器配套使用,當儀器檢測到可燃氣體泄漏時,監測儀器輸出信號,電磁閥自動快速關閉閥門,切斷燃氣供給,及時制止惡性事故的發生。該閥適用于供氣管網,燃氣熱能車間,燃氣鍋爐及民宅的燃氣系統等。
注解:
1、流體中如有雜質,電磁閥進口段需安裝過濾器。
緊急切斷電磁閥-常閉型-安全-防爆
緊急切斷電磁閥工作原理:
在平常工作中閥門處于常開狀態,線圈處于通電狀態,當泄露,或者異常斷電時,線圈瞬間斷電,動鐵芯分離,連桿失去支撐,在彈簧和活塞重力的作用下,快速關閉主閥口,切斷燃氣源,并進入自鎖狀態。
再次通電,閥門仍然處于關閉狀態,不會主動打開,當需要閥門打開時,先擰開防護罩,在線圈無電時,需要人工將拉桿拉起至位,同時等待線圈供電后,手動將拉桿放開,電磁閥正常供氣。
緊急切斷電磁閥技術參數:
產品通徑:DN15MM-DN600MM / 適應介質:天然氣、氫氣、煤氣、液化氣、瓦斯等
原理結構:分布活塞式、一步活塞式 / 工作壓力:0-0.1mpa、0-0.4mpa、0-0.6mpa
控制方式:常閉(手動復位,24小時通電) / 公稱壓力:PN16
連接方式:法蘭、內螺紋、焊接 / 關閉時間:0.1秒 / 泄漏量 :零泄漏
打開方式:手動復位 / 環境溫度:-50~+150℃ / 介質溫度:-30~+80℃
電源電壓:DC24V、AC220V等 / 電壓公差:-15%~+10%
閥體材質:鑄鋼、不銹鋼、鋁合金 / 金屬內件:不銹鋼304 / 開閉方向:上下
密封材質:氟橡膠 / 操作系數:通電型 / 防爆類型:隔爆型 / 防爆等級:Exd II CT5
外殼防護等級:IP65、IP67可選 / 接線方式:防爆鐵罩三芯雙護套電纜(引線式、封閉式)
出線長度:1.5米、可根據客戶要求定制
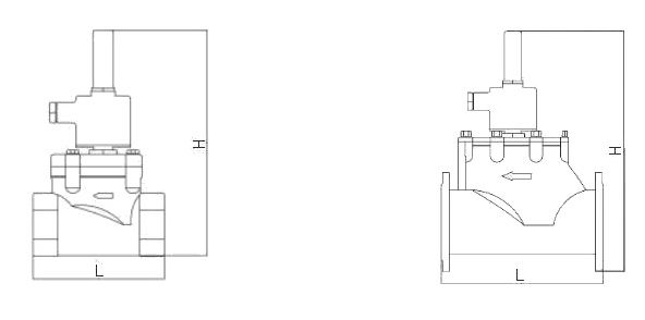
緊急切斷電磁閥安裝尺寸:


緊急切斷電磁閥安裝要求:
1、閥門安裝單位應具備相應資質并按照相關的燃氣管道施工規范和防爆電器規范安裝。
2、應按照圖示的位置要求和閥體表明的氣流方向安裝。
3、管道內吹掃時應采取有效措施防止管道內雜物損壞發內密封材料,(如隔離措施等),若燃氣中含有雜質,應在閥前端管路上安裝過濾器。
4、閥門安裝前應仔細檢查,嚴禁錯誤接線、加錯電壓,以免損壞電磁閥。
5、閥門安裝在哎戶外時,應設警示牌告知用戶,應做好防護罩的維護管理,防護罩不得損壞和丟失。
6、建議每半年動作一次,隨時保持緊急切斷閥良好的工作狀態。
7、閥門的關閉靠活塞重力和彈簧復位,安裝時介質流向水平,欄桿垂直在上端,嚴禁倒置或傾斜。
掃一掃關注公眾號